AutoCAD® Architecture 2017 Default Template File Bug
Contents:
Overview ---- Body
---- Conclusion
| 1Overview | |
| The
Problem Have you noticed that when viewing Objects in Plan View using the High Detail Display Configuration that they all display in true 3D? The default drawing template file, Aec Model (Imperial Ctb).dwt, in AutoCAD Architecture was modified several releases back and still has not been fixed. If you don't use this exact template file then you have nothing to worry about because I checked the other template files and they were okay. Below is a quick article on how to modify your AutoCAD Architecture template files to work as they were originally intended.
|
|
| 2Body | |
|
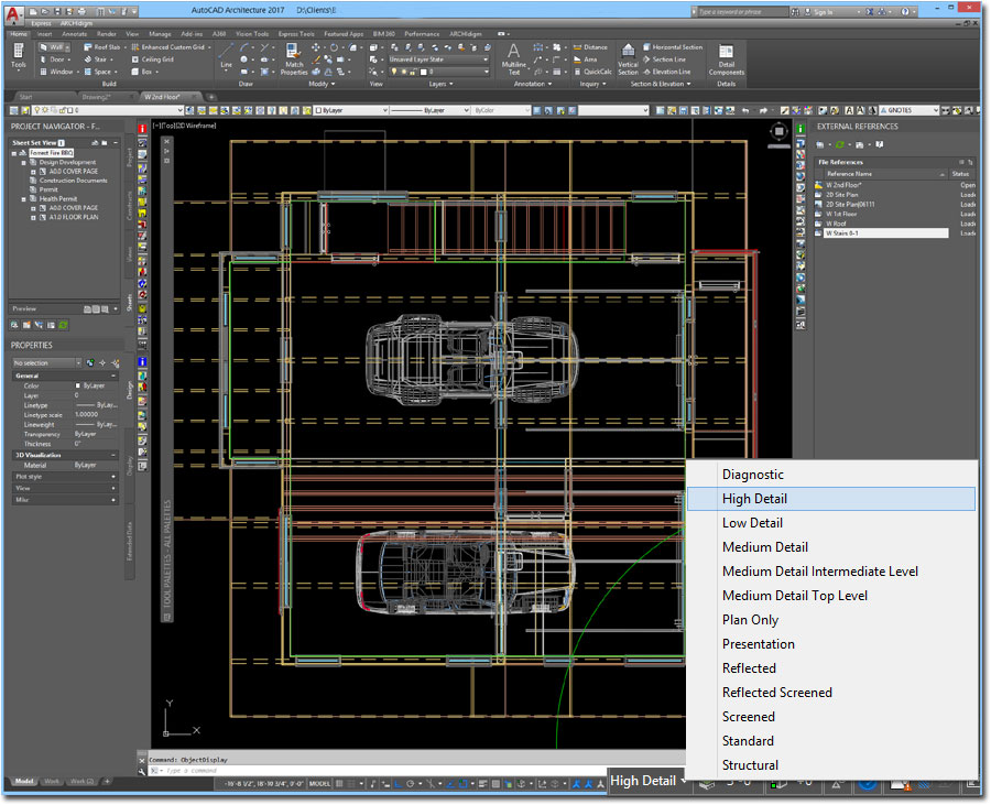
The Solution To fix the bug mentioned above, you can either create your own template file based on the default one or modify the existing template file. In the "Aec Model (Imperial Ctb).dwt" file, use the Display Manager to access the dialog box illustrated to the right. Go to the Configurations folder and highlight the High Detail Display Configuration. Under the Configuration tab, use the drop-down list for the Display Representation Set to Select "Plan High Detail" for the Top View Direction. Repeat the process of setting the Top View Direction to its corresponding Plan Display Representation Set for the "Low Detail", "Medium Detail Top View" and "Reflected Screened" Configurations. That's all you have to do. Now save the file as "Aec Model (Imperial Ctb).dwt" or as your own personal template file name. |
![]() |
| 3Conclusion | |
|
The End If you did the work outlined in section 2 above, you also just learned how to customize the Display Configurations. If you look at the list of Configurations, there's none for Model High Detail. That's a Display Configuration that will always show everything in true 3D regardless of View Direction and it's a great one to have so I suggest you create it for your own use. For your Model High Detail Display Configuration, set the Default to Model High Detail and then check the Override box and set it to "Viewport View Direction". This will force "Model High Detail" to display no matter what you do for viewing directions. |
© Copyright 2016 ARCHIdigm. All rights reserved.
Disclaimer and Copyright
Information
See this Page as Originally Intended